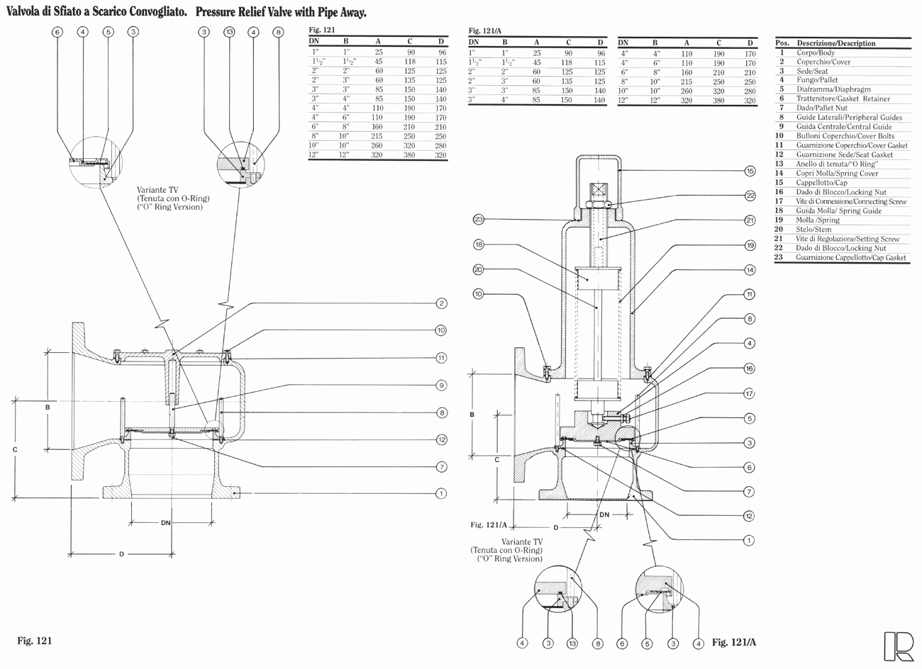
Tightness by elastomeric O-Rings (NBR, FPM/FKM, FFKM) to minimize the leakages.
These valves are used when the setting values exceed 800 mbar; the pallet is spring loaded.
The drip around the pallet avoids condensate collecting around the seat.
This arrangement assures a no-jamming guide of the pallet not affected by contaminant fluids as a close coupling between pallet and guides is not necessary.
Any setting available, charging the pallet's dead weight load, between + 20 mbar and + 400 mbar (On request higher sets)

RAMPINI s.r.l. - Via Andrej Sacharov, 17 - Limbiate (MB) - 20812
Tel. +39 02 29510899 ;
+39 02 99057839 Fax +39 02 29511081
e-mail: This email address is being protected from spambots. You need JavaScript enabled to view it.
P.IVA 01073520155
Web design with passion & caffeine by MV|Design